Каталог продукции
Компенсаторы
Заказ продукции

Сальниковые подогреватели

Описание
Технические характеристики
Эскизы
Фото
Видео
Опросный лист

Сальниковые подогреватели (конденсаторы пара уплотнений) предназначены для утилизации тепла пара, поступающего из концевых уплотнений паровой турбины. Они входят в состав вспомогательного оборудования паротурбинных установок и играют важную роль в обеспечении надежной и экономичной работы тепловых электростанций. 

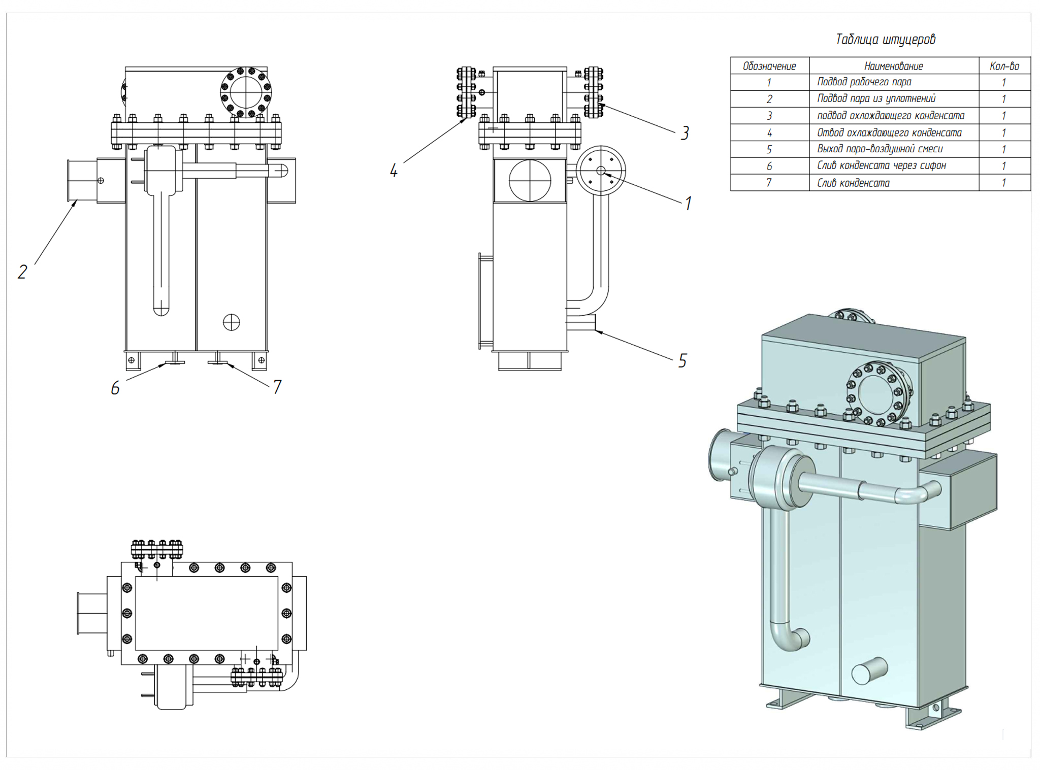
Конструктивно подогреватель сальниковый представляет собой кожухотрубный теплообменник, состоящий из корпуса, пускового эжектора, водяной камеры, трубного пучка и навесного оборудования.  Теплообменные трубки, как правило, изготавливаются из стали МНЖ5-1 или 12Х18Н10Т.

Основные марки сальниковых подогревателей: ПС-5-1-в, ПС-50-1, ПС-100-2, ПС-100-3, ПС-115, ПС-200-0.5-11.4, ПС-220-1, ПС-250-8-0.5, ПС-250-0.5-30, ПС-300-33-0.25.

Площадь теплообмена варьируется от 5 до 300 м2, а расход конденсата – до 4000 м3/час в зависимости от типоразмера подогревателя.

Подогреватели сальниковые устанавливаются на следующие типы турбин: К-50-90, К-100-90, К-200-130, ПТ-60/75-130/13, Т-180/210-130-1, Р-50-130/13, Р-100-130/15, К-300-240, Т-175/210-130, К-500-166, К-500-240, К-800-2400, Т-250/300-240, К-500-240, К-800-240.

Узнать стоимость и условия поставки можно обратившись в отдел маркетинга ООО «Химмаш» по электронной почте: marketing@penzahim.ru

Технические характеристики сальниковых подогревателей

Обозначение Поверхность нагрева, м2 Расход основного конденсата, м3/час Турбины, на которых устанавливаются подогреватели
ПС-5-в-1 5 - -
ПС-50 50 400 / 150 К-50-90,
К-100-90,
К-200-130,
Р-50-130/13,
ПТ-60/75-130/13,
Т-180/210-130-1
ПС-100-2 100 240 / 80 Р-100-130/15
ПС-100-3 300 / 140
ПС-115 115 700 / 140 К-300-240
ПС-200-0,5-11,4 200 4000 Т-175/210-130
ПС-220-1 220 1700 К-500-166,
К-500-240,
К-800-2400
ПС-250-8-0,5 250 1200 Т-250/300-240
ПС-250-0,5-30 250 / 660
ПС-300-33-0.25 300 1350 К-500-240,
К-800-240

Эскиз сальниковый подогреватель

эскиз.jpg

Для заказа нашей продукции вы можете скачать опросный лист на сальниковые подогреватели и направить его по электронной почте: marketing@penzahim.ru. Также можете связаться с нашими менеджерами по телефонам: +7(8412) 99-19-89, 99-19-35, 99-19-73, 99-19-75, 99-19-24.